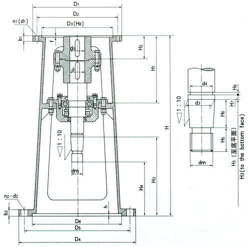
TB型支架

減速機 型號 | 支架號 | 端入端接口 | 正輸出端接口 | 建議配用反 應罐容積(L) | ||||||||||||
do | D1 | D2 | D3 | n1-d1 | f | b1 | D4 | D5 | D6 | h | b2 | n2-d2 | ||||
BLY15 | TB1 | 35 | 230 | 200 | 170 | 6-11 | 6 | 18 | 335 | 270 | 220 | 5 | 24 | 4-24 | 50-100 | |
TB2 | 35 | 230 | 200 | 170 | 6-11 | 6 | 18 | 335 | 300 | 250 | 5 | 24 | 4-24 | 200 | ||
BLY22 | TB3 | 55 | 340 | 310 | 270 | 6-11 | 6 | 20 | 392 | 350 | 295 | 5 | 26 | 4-28 | 300-500 | |
TB4 | 55 | 340 | 310 | 270 | 6-11 | 6 | 20 | 442 | 400 | 345 | 5 | 26 | 4-28 | 1000-2000 | ||
TB5 | 55 | 340 | 310 | 270 | 6-11 | 6 | 20 | 498 | 450 | 390 | 5 | 26 | 4-30 | 3000 | ||
BLY27 | TB6 | 70 | 400 | 360 | 316 | 8-17 | 8 | 22 | 560 | 500 | 435 | 5 | 30 | 4-30 | 5000 | |
BLY33 | TB7 | 90 | 495 | 450 | 400 | 12-22 | 8 | 25 | 600 | 550 | 440 | 5 | 30 | 12-22 | 10000 |
支架號 | 外形及聯(lián)接尺寸 | |||||||||||||
H | H1 | H2 | H3 | H4 | H5 | H6 | H7 | H8 | d | d3 | d4 | dm | ||
TB1 | 528 | 200 | 84 | 216 | 153 | 30 | 33 | 6 | 5 | 40 | 30 | 24.5 | M24×3 | |
TB2 | 528 | 200 | 84 | 217 | 141 | 32 | 44 | 6 | 5 | 40 | 39 | 34.5 | M33×3.5 | |
TB3 | 585 | 220 | 84 | 251 | 169 | 35 | 47 | 6 | 5 | 50 | 39 | 34.5 | M33×3.5 | |
TB4 | 675 | 250 | 99 | 300 | 203 | 44 | 53 | 8 | 5 | 60 | 50 | 41.5 | M42×4.5 | |
TB5 | 680 | 250 | 99 | 300 | 193 | 49 | 58 | 8 | 5 | 60 | 60 | 51.5 | M52×5 | |
TB6 | 736 | 280 | 115 | 325 | 201 | 60 | 64 | 8 | 5 | 85 | 70 | 61.5 | M64×6 | |
TB7 | 761 | 306 | 140 | 323 | 201 | 50 | 72 | 10 | 8 | 85 | 80 | 70 | M72×6 |

TB型支架 0 本文被閱讀 4834 次